光成端箱(光成端架)(屋内自立・高密度実装型) CTF****

CTF200、CTF300、CTF400、CTF500、CTF600、CTF800、CTF1000、CTF1200

用途

屋内自立

特長

  • 高密度実装方式を採用し、大容量にも関わらず小型化を実現しました。
  • ケーブル導入方向変更も対応可能ですのでお問い合わせください。
  • 光アダプタはSC形が標準です。他のタイプについてはお問い合わせください。
  • 成端箱内部にあらかじめ光コードを配線(プレ配線)することも可能です。

CTF200

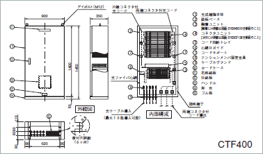
CTF400

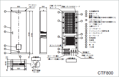
CTF800

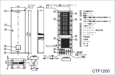
CTF1200

仕様

型 式 ケーブル導入条数 光アダプタ実装数 融着ユニット数 コネクタユニット数 寸法W×H×D(mm)
CTF200 最大10条 最大200心 1(60接続/ユニット) 2(100心/ユニット) 800×1050×350
CTF300 最大10条 最大300心 1(90接続/ユニット) 3(100心/ユニット) 800×1250×350
CTF400 最大10条 最大400心 1(120接続/ユニット) 4(100心/ユニット) 800×1450×350
CTF500 最大10条 最大500心 1(150接続/ユニット) 5(100心/ユニット) 800×1600×350
CTF600 最大10条 最大600心 2(90接続/ユニット) 6(100心/ユニット) 800×1950×350
CTF800 最大10条 最大800心 2(120接続/ユニット) 8(100心/ユニット) 800×2150×350
CTF1000 最大10条 最大1000心 2(150接続/ユニット) 10(100心/ユニット) 800×2350×350
CTF1200 最大10条 最大1200心 2(150接続/ユニット) 10(120心/ユニット) 800×2350×350

品名略号



ABOUT US

持続可能な社会を支える高機能材料会社

売上収益

7,686億円

全従業員数

18,877